正文 首页行业新闻

电梯机房爬梯设计要求标准

ming

1、五、电梯地坑保养 1、在地坑电力门前设置障碍电梯安装要求

,且在此之前打开厅门,确保厅门能顺利停止。2、观察地坑是否有积水情况,观察地坑紧急按钮是否有损坏,是否连接不顺畅等。3、检查底坑爬梯状况,如果安装方面出现松动,如果紧急装置有异常,要及时维修,而地坑与张紧轮平面之间,应确保50~500毫米之间必须安装...;一般垂直电梯电梯安装要求

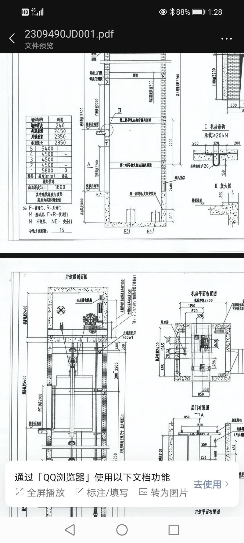
的土建布置图包含:井道立面图、机房(无机房电梯为顶层)平面布置图、井道平面布置图、局部放大图、技术说明(包含注意事项)和订购单位及生产单位。1、井道立面图需要表达:机房净高、顶层净高、提升高度、底坑深度、圈梁或导轨支架预埋件、井道照明灯排布、底坑爬梯的位置、缓冲器支座及所受到...;面对现场的实际挑战,例如电梯前室与屋面层的标高差异,形成了一定的安全隐患。在这种情况下,若需通过爬梯进入屋面层的电梯机房设备平台,栏杆高度为1.1米的设定可能使得自由落体风险增加,因为栏杆顶部可能成为跳落的平台。为解决这一问题,有两种潜在的解决方案。一是单独提高这一特定栏杆的高度,但这...;4)电梯安装报警装置。5)通向机房的通道、楼梯和门的宽度不应小于1.20 m,门高不应小于2m,楼梯的坡度宜小于等于45°。上电梯机房不应采用垂直爬梯。6)机房顶板上部不宜设置水箱,不得利用机房顶板作水箱底板。如需设置时,水箱间地面应有可靠的防水措施,机房内不应穿越水管和供热管。7)设置曳引...。

2、如果控制柜、控制屏是固定封闭的,人员不能从它的侧面或背面进入,则在控制柜、控制屏的侧面或背面不需要提供净空距离。若机房或机罩的位置距井道较远时,应保证有一个在任何时候都能安全方便进入机房或接近机罩的通道。该通道应畅通,高度不小于1.8m,有固定照明。如采用爬梯,应保证安全。;屋面人孔做法参见03J930《住宅建筑构造》,第302页;盖板采用保温盖板做法参见06j204《屋面节能建筑构造》,第26页。;楼梯间的面积按楼梯间的投影计算。整体楼梯包括休息平台、平台梁、斜梁、楼梯梁,按水平投影面积计算上,不扣除宽度小于200mm的楼梯井,深入墙内部分不增加,有梯梁的算至梯梁外侧面,没有梯梁的则要向外加300mm作为计算睥梯长。{如果是面砖面层就需要按时计算既需要计算踢面也需要计算踏面(用于可视为...;上人屋面:人在上面要经常行走活动的屋面——设计有门和楼梯通向这个屋面,考虑在使用中具有和露台同样或超过功能(如观景、晾晒、锻炼等等)的屋面;非上人屋面:人不在上面经常行走活动的屋面——设计没有门和楼梯通向这个屋面,除了检修时外,平时不考虑让人上去的屋面;上人...;电梯机房地面高度与楼地面高度不超过1.5米的可做成90度爬梯,超过1.5米的做成65~75度爬梯 最好不要垂直,就算做成垂直,也要有扶手栏杆可以啊。

电梯机房爬梯设计要求标准

3、1、机房留洞及机房吊钩位置请厂家配合(各品牌留洞位置有差异);2、机房门的开启方向应向外开,开门宽度应不小于1200mm;3、机房应留有排风设备;4、机房井道部分如有局部抬升,高度超过500mm时应做爬梯及护栏;5、原则上电梯机房应为专用,不能有与电梯不相干的设备。;不可以,要是电梯坏了或里面困人了,怎把?好退一步说,要是在施工是,没有楼梯电梯安装要求

你怎么上去,1;国标和检规不允许 但不是枪毙项 做了也无所谓 但是 曳引机机房设备没运上去那可忒费劲了 按照现行的电梯监督检验规则,任何问题都可以枪毙电梯安装要求

你。让电梯安装要求

你通不过验收。严格说爬梯不允许超过60度,梯级面宽都有规定。国标上对爬梯的型式有很具体的规定,可以参考。只要关系到位,用木头梯子也无所谓;各厂家的要求不同,主要是为了检修方便。电梯

˙△˙

电梯机房爬梯设计要求标准

4、法律分析:电梯机房爬梯设计要求的标准如下:1、超过1.5M可以做成垂直的,宽度不能小于0.35M;2、国标中要求,梯子高度超过1.5M时,其与水平方向夹角65至75度。爬梯作为城市检查井道的附属设施,长期以来,爬梯材料一直采用钢筋制作。但传统金属爬梯在许多恶劣环境条件下极易锈蚀,影响使用安全,使用寿命也较短。法律依据;就是不展开,不分层计算,不用考虑什么层高、转台什么的,就当梯间是一个平面、平板就行了。二、屋面楼梯间如何计算建筑面积?同样先上最新建筑面积计算规则《GBT50353-2013》:3.0.17设在建筑物顶部的、有围护结构的楼梯间、水箱间、电梯机房等,结构层高在2.20m及以上的应计算全面积;结构层高在2....;综上所述,电梯机房爬梯斜坡通常设计为60度,这一设计旨在确保人员安全设备维护的便捷性。在实际应用中,设计者还需根据具体情况对角度进行适当调整,以满足实际需求和当地的安全规范。;工程作法不同,上人屋面一般作完防水层后就完工了,而上人屋面在做完防水层后。上人屋面必须有楼梯通到屋面层,而不上人屋面可以留一个上人孔,通过爬梯上到屋面层。功能不同,上人屋面可以供人在屋面上进行活动,而不上人屋面没有这个功能。上人屋面必须有楼梯通到屋面层,而不上人屋面可以留一个上人孔...。

版权免责声明 1、本文标题:《电梯机房爬梯设计要求标准-公司新闻-黑龙江三洋电梯有限公司哈尔滨分公司》
2、本文来源于,版权归原作者所有,转载请注明出处!
3、本网站所有内容仅代表作者本人的观点,与本网站立场无关,作者文责自负。
4、本网站内容来自互联网,对于不当转载或引用而引起的民事纷争、行政处理或其他损失,本网不承担责任。
5、如果有侵权内容、不妥之处,请第一时间联系我们删除。嘀嘀嘀 QQ:XXXXXBB